Bản vẽ thang máy [Bản vẽ thiết kế xây dựng hố thang]
Bản vẽ thang máy là một tài liệu kĩ thuật, thể hiện thông tin và các yêu cầu kĩ thuật liên quan của một hố thang máy cụ thể. Bản vẽ này giúp người đọc có cái nhìn tổng quan về giếng thang trên thực tế. Nó thể hiện thông tin kích thước, thông số kỹ thuật và đóng vai trò quan trọng trong việc thi công giếng thang. Trước khi thi công giếng thang máy, việc có một bản vẽ thang máy giúp thi công giếng thang được chính xác, không bị sai sót, tránh lãng phí và quan trọng là đảm bảo được yếu tố kết cấu chịu lực đúng và đủ theo yêu cầu kĩ thuật của nhà sản xuất thang máy.
==>>>Tham khảo bài viết tổng hợp chi tiết mọi: kích thước thang máy gia đình

Hình ảnh mô tả: Bản vẽ thang máy
Bản vẽ thang máy gia đình bê tông tường gạch
Phần nội dung này, chúng tôi giới thiệu tới các bạn bản vẽ từng hạng mục thi công của một giếng thang máy hoàn chỉnh.
Bản vẽ kết cấu hố pit thang máy

Hình ảnh: Bản vẽ kết cấu mặt bằng hố pit thang máy
Bản vẽ kết cấu hố pit thể hiện chi tiết mặt bằng hố pit cùng mặt cắt đứng hai vách hông và mặt cắt trước sau, các thông số độ dày thành hố pit, kích thước các chiều rộngxsâu thông thủy. Thi công hố pit thang máy là bước quan trọng đầu tiên trong việc hình thành hố thang máy của bạn sau này, chính vì vậy bạn nên liên hệ đơn vị cung cấp thang máy để cử người qua kiểm tra giám sát, đo đạc kích thước trước khi đổ bê tông.
Lưu ý: Để đảm bảo hố pit thang máy không bị ngấm tại các vị trí tiếp giáp 2 lớp đổ, nên đan sắt đổ bê tông thành và đáy hố pit liền một khối, kèm các biện pháp chống thấm phù hợp
Mặt cắt dọc hố thang máy

Hình ảnh: Bản vẽ mặt cắt dọc hố thang máy
Mặt cắt dọc hố thang máy gồm 2 mặt cắt:
- Mặt cắt dọc phía trước và sau hố thang
- Mặt cắt dọc hai vách hông hố thang
Lưu ý: tại các điểm giữa tầng (chia đôi chiều cao tầng) ở hai vách hông và mặt sau đều phải có đà bê tông, mục đích các đà bê tông này giúp cho việc khoan nở bắt basket ray cabin và đối trọng được chắc chắn hơn so với bắt nở và tường gạch. Trong bản vẽ này phần cao độ vị trí gác bệ máy cùng tổng chiều cao oh hố thang máy là những kích thước đã hoàn thiện và đặc biệt quan trọng. Việc thi công sai bản vẽ của nhà cung cấp sẽ ảnh hưởng rất lớn tới việc lắp đặt thang máy về sau, nghiêm trọng hơn thang máy có thể không lắp được hoặc bạn phải tốn kém chi phí điều chỉnh lại.
Bản vẽ mặt cắt dọc cửa tầng thang máy

Hình ảnh: Mặt cắt dọc cửa tầng thang máy 450kg
Mặt cắt dọc cửa tầng thang máy thể hiện độ rộng kích thước chờ thô cửa tầng thang máy, chiều cao lanh tô cửa so với cos hoàn thiện. Lanh tô thang máy giúp treo thiết bị đầu cửa tầng. Chiều cao tiêu chuẩn thường là 2m3, lắp được cửa thang máy tiêu chuẩn cao 2m1.
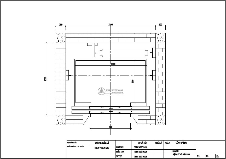
Mặt cắt ngang hố thang máy và cabin

Hình ảnh: Mặt cắt ngang hố thang và cabin
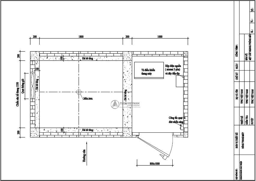
Mặt cắt ngang phòng máy, vị trí gác bệ máy

Hình ảnh: Mặt cắt ngang phòng máy, vị trí kê bệ máy
Điểm gác bệ máy là một vị trí quan trọng trong thiết kế chịu lực của thang máy. Hầu như toàn bộ khối lượng của hệ thống thang máy được nén xuống bốn đầu cột và các hệ đà dầm gác ngang. Trên bản vẽ các bạn có thể thấy dầm đỡ được thiết kế là dầm chịu lực 200x200, xây tường 110 bao che phía ngoài, 10cm phía trong dùng cho việc gác bệ máy hoặc điểm khóa cáp. Vậy khi thi công bạn cần chú ý điều gì:
- Dầm gác bệ máy là dầm chịu lực chính, tối thiểu phải là dầm 200x200 hoặc 150x300
- Xây tường 110 bao che, dành tối thiểu 10cm làm điểm gác
- Tham khảo ý kiến người tư vấn thang máy về vị trí đặt tủ điều khiển
- Nhớ để móc treo phục vụ cho việc thi công lắp đặt thang và sửa chữa sau này. Móc treo sử dụng thép vằn phi 18, được uốn dạng vai bò buộc 2 đầu chắc chắn vào sắt mái tum trước khi đổ bê tông mái.
Bản vẽ so sánh giếng thang máy dạng có phòng máy và không phòng máy
Thông thường tại việt Nam đang phổ cập 2 dòng thang máy có phòng máy và không phòng máy với kiểu xây dựng theo cấu trúc cột bê tông tường bao quanh bằng gạch
Download bản vẽ xây dựng thang máy gia đình tại đây: bản vẽ thang máy 450kg KPM.pdf ; bản vẽ thang máy 350kg có phòng máy.pdf

sự khác biệt bản vẽ thang máy có phòng máy và không phòng máy
Yêu cầu kĩ thuật bản vẽ xây dựng hố thang (do khách hàng thực hiện)
1 . Đảm bảo kích thước thông thủy của giếng thang cho phép sai lệch nhưng không quá tối đa : ± 25 mm ( đối với độ cao <= 30m )
2 . Chống thấm hố thang , đảm bảo việc khoan sâu 150mm nước không thấm
3 . Xây dựng phải chừa hay đục các lỗ đặt hộp gọi tầng ( theo bản vẽ)
4 . Có dầm bê tông phía trên cửa ( theo bản vẽ ) để treo bộ truyền cửa và cánh cửa, 3 vách còn lại dầm bê tông làm ( ở giữa tầng để lắp gối ray
5 . Có móc treo chịu lực ở đỉnh buồng máy >=2000kg ( xây dựng theo bản vẽ)
6 . Cầu thang bộ lên phòng máy hay xuống hố Pit
7 . Buồng máy có cửa ra vào , có khóa , có đèn , lắp quạt thông gió ( Hoặc có lắp cút thông gió phi 110 ở 4 mặt hố thang ) đảm bảo nhiệt độ luôn ở mức<=50o C độ C ( Khuyến cáo của mọi hãng thang máy trên thế giới), thông gió tốt và chuột không bọ không chui qua được.
8. Cung cấp nguồn điện 3 pha , hộp điện có Aptomat 3pha - 40A (trường hợp sử dụng điện 1 phase thì hộp điện có Aptomat 1 pha - 40A) và Aptomat 1 pha - 5A , có cọc tiếp đất nối dây dẫn tiếp địa(>=8mm) lên phòng máy
9 . Hoàn thiện phần xây dựng sau khi lắp đặt xong phần cơ khí để bên thang máy hoàn thiện sang phần vận hành.
Bản vẽ thang máy gia đình cho nhà cải tạo
Đối với công trình xây mới, bản vẽ hố thang máy có thể dễ dàng lên thiết kế. Đơn vị cung cấp chỉ cần xác định được nhu cầu loại thang, tải trọng thang, số điểm dừng là đã có thể cung cấp bản vẽ một cách nhanh chóng. Ngược lại, với nhà cải tạo, kĩ sư thiết kế cần khảo sát kĩ mặt bằng thực tế, lên phương án tư vấn và phối hợp cùng chủ đầu tư chọn ra một phương án thiết kế tối ưu. Bản vẽ cần thể hiện được mặt bằng hiện trạng và mặt bằng sau khi cải tạo, linh hoạt với điều kiện thi công thực tế mà vẫn đảm bảo được các yếu tố kĩ thuật.
Bản vẽ sơ đồ cấp điện 3 phase lên phòng máy thang máy
Sơ đồ cấp điện 3 phase lên phòng máy, cung cấp nguồn điện thi công lắp đặt và là nguồn điện hoạt động của hệ thống thang máy. Nội dung bản vẽ sơ đồ này gồm các hạng mục:
- Hạng mục sơ đồ thi công tiếp địa (chủ đầu tư thực hiện): gồm hệ thống cọc tiếp mát đóng dưới sàn nền tầng 1 được đấu nối với dây tiếp địa kéo lên tủ điều khiển chính của thang máy. Hệ thống tiếp đia là một phần quan trọng của thang máy, giúp xử lý chống nhiễu và dò điện trong quá trình sử dụng.
- Hạng mục sơ đồ nguyên lý cấp điện cho tủ điều khiển: chủ đầu tư cấp nguồn điện 3 phase (dây 3 phase và attomat 3 phase) lên phòng máy chỗ vị trí đặt tủ điều khiển và phạm vi của nhà thầu thi công thang máy.

Bản vẽ thang máy cho hố thang khung thép, khung nhôm
Đối với những nhà cải tạo, những gia đình muốn làm cầu thang máy xung quanh cầu thang bộ để làm thang máy kính, hoặc những công trình lắp thang máy ngoài trời mà việc xây dựng thêm cho phần thang máy phức tạp thì phương án lắp khung thép thang máy là một lựa chọn hợp lý
Download các bản vẽ thang máy khung thép: bản vẽ thang máy khung thép vách kính 630kg KPM.pdf

lưu ý:
Độ lệch dây rọi sau khi dựng khung thép hàn liên kết không bắt ốc thì không được vượt quá 15mm
Đối với khung thép chấn bắt bulon ốc, hoặc khung nhôm bắt liên kết ốc thì độ đổ không được vượt quá 10mm
==>>>Tham khảo:
Khung thép thang máy kính chuyên dụng
Khung sắt kết cấu hố thang máy dạng đúc U I V H Hộp
Khung nhôm thang máy {Loại Bắt ốc, Sơn Tĩnh điện, Anode}
Tổng kết: Xây dựng giếng thang máy không hề phức tạp, việc quan trọng bạn cần chọn được đơn vị cung cấp thang máy uy tín, nơi có thể tư vấn, hướng dẫn và cung cấp bản vẽ thang máy hoàn chỉnh ngay từ ban đầu. Bạn cũng nên tìm hiểu kĩ thông tin và đặc biệt không chủ quan tự mình quyết định xây dựng giếng thang khi chưa tham khảo ý kiến từ những người có chuyên môn về thang máy. Liên hệ ngay tới chúng tôi nếu bạn có điều gì thắc mắc và cần được giải đáp về bản vẽ hố thang máy. Chúng tôi rất sẵn lòng tư vấn những giải pháp phù hợp nhất cho bạn.
![Lắp đặt Bản vẽ thang máy [Bản vẽ thiết kế xây dựng hố thang] toàn quốc](/sites/all/themes/savita/images/lap-dat-toan-quoc.jpg)
Sản phẩm chính hãng
Bảo hành chính hãng
Giá bán siêu cạnh tranh
Dịch vụ chuyên nghiệp, uy tín
Lắp đặt đẩm bảo đúng tiến độ
Hỗ trợ kỹ thuật 24/7



