Tư vấn thiết kế

Kích thước thang máy gia đình - hướng dẫn chi tiết

Thông số kích thước thang máy gia đình luôn là yếu tố người dùng quan tâm đầu tiên trước khi quyết định lựa chọn lắp đặt thang máy. Bởi đơn...

Hố pit thang máy: khái niệm, công dụng và các yếu tố ảnh hưởng

Hố pit thang máy là một thành phần quan trọng của hệ thống thang máy, đóng vai trò quyết định đến hiệu suất và độ an toàn khi vận hành thang máy...

Những thông số kỹ thuật thang máy gia đình cần biết khi lắp đặt

Nhu cầu lắp đặt thang máy gia đình trên thị trường hiện nay khá cao. Tuy nhiên, với những khách hàng mới lắp đặt thang máy lần đầu, hiểu rõ các thông...

Giải pháp thiết kế thang máy gia đình

Việc thiết kế thang máy, tính toán lựa chọn thang máy cho công trình bạn cần phải có kiến thức cũng như phải tham khảo ý kiến của...

OH thang máy - Khái niệm và tầm ảnh hưởng trong thiết kế thang máy

Bất cứ ai có nhu cầu lắp đặt thang máy gia đình đều quan tâm tới tiêu chuẩn chất lượng, thông số kĩ thuật và giá thành. Là một người tư vấn bán hàng...

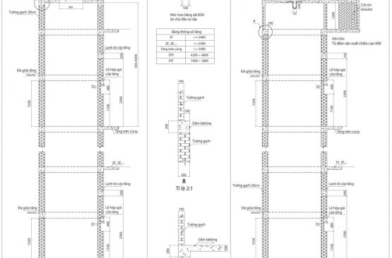
Bản vẽ thang máy [Bản vẽ thiết kế xây dựng hố thang]

Bản vẽ thang máy là một tài liệu kĩ thuật, thể hiện thông tin và các yêu cầu kĩ thuật liên quan của một hố thang máy cụ thể. Bản vẽ này giúp người...